Publicador de contenidos

Atrás SIBER ZONE S.L.U.

Logo SIBER ZONE S.L.U.

SIBER ZONE S.L.U.

Sistemas de ventilación altamente eficientes , saludables, confortables y sostenibles.

El Grupo Siber es el líder del mercado español de sistemas de ventilación mecánica controlada para el segmento residencial. La misión principal de Siber como fabricante es proveer un conjunto de soluciones tecnológicas de alta eficiencia en sistemas de ventilación, con el fin de garantizar una óptima calidad del aire interior, mejorando la salud, confort, eficiencia energética y sostenibilidad en cada uno de los proyectos en que colabora. Siber participa en más del 60% de los proyectos nacionales de forma directa o indirecta de todos los edificios que se construyen en España. Las principales líneas de negocio de Siber son las edificación residencial (plurifamiliares y unifamiliares), la rehabilitación y la edificación terciaria (oficinas, colegios,etc).

Desde Siber acompañan a los profesionales que participan en el proyecto en cada una de las distintas fases que lo componen -estudio, diseño, instalación, puesta en marcha y seguimiento del sistema de ventilación-. Este 2021 Siber da un paso al frente presentando sus nuevos equipos de ventilación para garajes, cubriendo la instalación integral de todo el edificio con sistemas de ventilación inteligente.

 

 

Ventilación Mecánica Simple Flujo

Su funcionamiento, basado en el principio de barrido del aire dentro de las viviendas, es totalmente independiente entre las mismas ofreciendo un excelente equilibrio entre garantía de calidad de aire interior y autonomía de consumo según ocupación y uso.

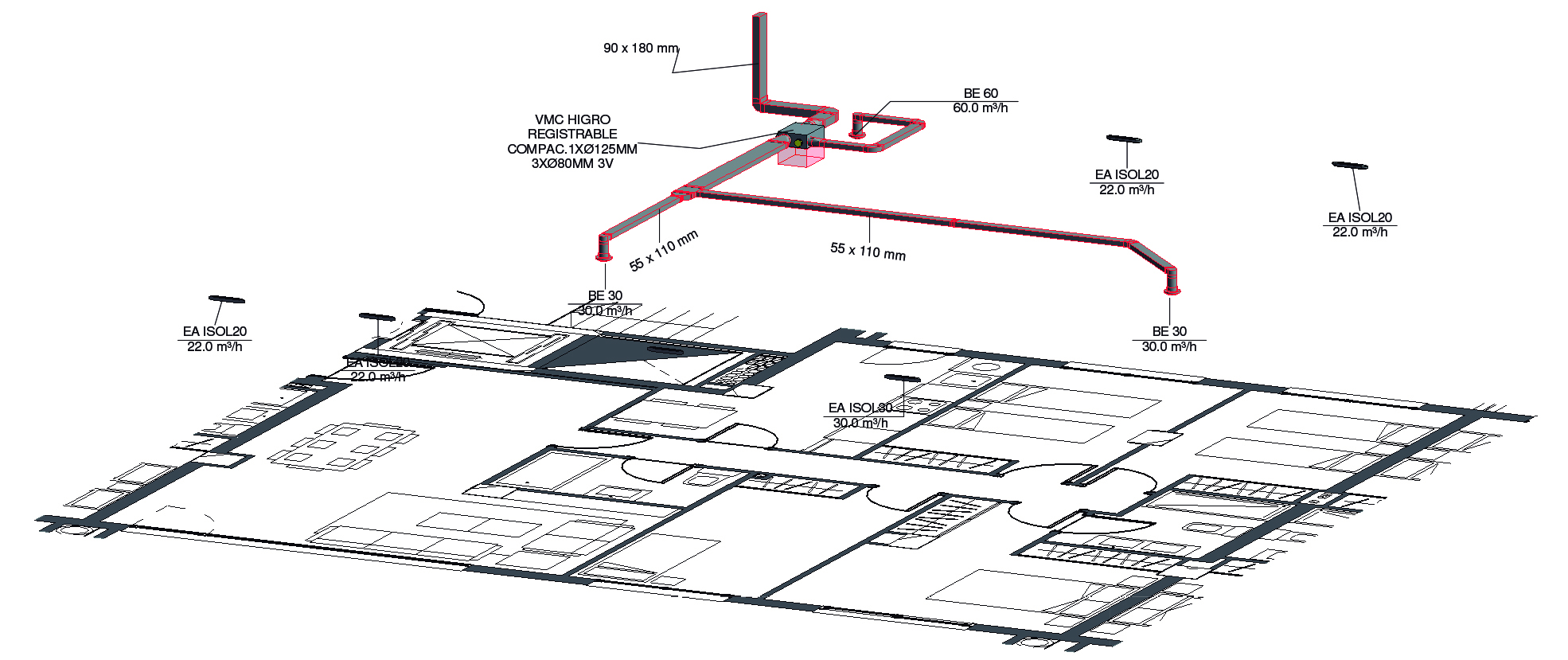
Simple Flujo Autorregulable

Sistema concebido para la extracción individual de aire viciado y renovación en las viviendas en función de caudales constantes Proyecto BIM – SF AUTORREGULABLE

Simple Flujo Higrorregulable

Caudal variable y mejora de la eficiencia energética Sistema concebido para la extracción individual de aire viciado y renovación en las viviendas en función de los niveles de higrometría detectados. Proyecto BIM – SF HIGRORREGULABLE

 

VMC Doble Flujo

Calidad de aire, confort y economías de energía

Sistema de ventilación que asegura la calidad del aire, a través de la extracción del aire viciado en las estancias húmedas (cocina, baños, aseos, lavaderos,…) y que simultáneamente asegura la insuflación de aire nuevo filtrado en las estancias secas (salón, comedor, dormitorios,…).

Gracias al núcleo del recuperador podemos llegar a recuperar hasta el 95% de la energía del aire de expulsión.

 

DESARROLLO DE TECNOLOGÍA DE ÚLTIMA GENERACIÓN: EQUIPO EVO, la evolución sostenible en confort, purificación del aire y eficiencia energética.

Siber DF EVO es el nuevo desarrollo en equipos de ventilación de doble flujo con recuperación de calor de última generación. Su diseño extraplano, alta versatilidad y prestaciones lo convierten en el equipo más completo del mercado, obteniendo una eficiencia superior.

Presenta un diseño aerodinámico con intercambiador de calor de flujos cruzados de alto rendimiento, lo que permite una mayor eficiencia energética de hasta el 95%, consiguiendo así un mayor caudal a una menor presión.

Gracias a su tecnología a caudal constante, ventilador centrífugo a corriente continua y álabes inclinados hacia adelante se asegura el caudal constante, consumos eléctricos reducidos, fácil mantenimiento y una óptima calidad del aire.

Su funcionamiento silencioso asegura el confort acústico de la vivienda y su amplia gama de filtros posibilita una alta filtración de partículas y olores, garantizando la purificación del aire.

Convierte cualquier vivienda en una Smart home gestionándolo a través de su app, además de contar con integración KNX y Modbus para Domótica.

Evo está avalado por certificaciones en los más altos estándares de calidad como la certificación de componente certificado Passivhaus, Breeam o Well, y su composición lo convierte en un equipo sin huella de carbono gracias a sus materiales reciclables contribuyendo así a la reducción de las emisiones de efecto invernadero. Un paso clave para reducir el cambio climático.

 

Proyectos BIM – Sistema de ventilación Doble flujo con recuperador de calor

 

Documentación

Catálogos 

Fichas Técnicas 

Centro de recursos:

Ebooks gratuitos 

APPS SIBER 

Direcciónycontacto